晋财网主页 > 家居 > 正文 >

大白墙、水泥地,48㎡的小户型,进屋就被吸引了,简约又漂亮

时间:2020-09-08 17:08:31 来源:互联网 阅读:-

拥有一处安稳的住宅,对于工作和生活都有很大的帮助。小户型的出现,受到了很多年轻人的欢迎,尤其是在一线城市。这次就分享一套小户型装修,房屋坐落于北京,使用面积48㎡,是屋主JOEY&SUMMER在北京的家,装修上运用了很多非常规做法,大白墙和水泥地的搭配,让空间显得格外高级精致,进屋就被吸引了,简约又漂亮,看看装修效果吧。(图源:云深空间设计事务所)

大白墙、水泥地,48㎡的小户型,进屋就被吸引了,简约又漂亮

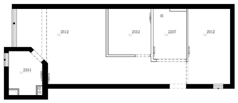
原户型分析:

1、原本就紧凑的空间,还在客厅隔离出一间卧室,导致采光差空间逼仄;

2、入户门与卫生间正对,且无收纳功能,也没有独立的用餐空间;

3、厨房斜切墙面并没有带来优势,反而让厨房空间很拥挤。

大白墙、水泥地,48㎡的小户型,进屋就被吸引了,简约又漂亮

装修改造分析:

1、改变卫生间门方向,改变入户门正对卫生间的局面。内移墙体嵌入鞋柜,提高入户收纳;

2、拆除原有客厅卧室,增加岛台和西厨设计,不仅空间通透还拥有了就餐空间;

3、去除厨房斜切墙体,利用长虹玻璃门补齐做隔断,扩大厨房内部空间,还不影响采光;

4、卧室合理利用空间,一分为二开辟出衣帽间,满足女主人对衣帽间的向往。

大白墙、水泥地,48㎡的小户型,进屋就被吸引了,简约又漂亮

进屋映入眼帘的是嵌入式鞋柜,改造后避免了入户正对卫生间的尴尬局面,还让入户拥有了收纳能力。其次便是地面给人耳目一新之感,不是地板也不是地砖,而是艺术水泥漆地面,高级灰基色赋予了空间静谧高级感。

大白墙、水泥地,48㎡的小户型,进屋就被吸引了,简约又漂亮

进门左侧依次是黑板墙、洞洞板和穿衣镜,不规则的穿衣镜搭配上三角几何造型的换鞋凳,给空间增添了些许艺术氛围,空间也不那么单调。

大白墙、水泥地,48㎡的小户型,进屋就被吸引了,简约又漂亮

大白墙、水泥地,48㎡的小户型,进屋就被吸引了,简约又漂亮

客厅拆除了原有次卧后,空间更通透宽敞。硬装和软装结合,让空间多了一份时尚感,符合年轻人的审美观。艺术水泥漆地面,高级灰基调营造的不仅是静谧氛围,还让空间包容性更强,绿色沙发算得上点睛之笔,给静谧的空间增添了活力感。

大白墙、水泥地,48㎡的小户型,进屋就被吸引了,简约又漂亮

竖向百叶窗,可控范围大,可以随时感受光影的变化。百叶窗不仅有着遮光效果,还可以改善视觉空间高度。一把休闲椅,望阳光洒下,享受生活的美好。

大白墙、水泥地,48㎡的小户型,进屋就被吸引了,简约又漂亮

电视墙不做其他造型设计,直接定制悬挂储物柜,提高居家收纳能力,同时也让扫地机器人和喵星人活动更方便。储物柜采取封闭式和开放式结合,局部做展示柜,视觉不呆板更显活泼。

大白墙、水泥地,48㎡的小户型,进屋就被吸引了,简约又漂亮

大白墙、水泥地,48㎡的小户型,进屋就被吸引了,简约又漂亮

拆除了原有次卧,增加岛台和西厨空间,拥有就餐空间的同时,空间也更加通透宽敞。餐桌嵌入岛台连成一体,除了日常用餐之外,还可以是居家办公空间。西厨整排的收纳柜设计,给居家收纳提供了保障,嵌入式电器设计美观又实用。洄游动线设计,不仅空间更灵活,互动性也更强。

大白墙、水泥地,48㎡的小户型,进屋就被吸引了,简约又漂亮

厨房去除了斜切墙体,利用长虹玻璃门隔断,既扩大了厨房空间,又保证了室内采光。

大白墙、水泥地,48㎡的小户型,进屋就被吸引了,简约又漂亮

厨房由原来的L型改成U型布局,增加操作台空间又不显拥挤,洗、切、炒的流水动线,让烹饪变得不再繁琐。为了空间不压抑,舍弃吊柜设计,利用简易隔板架取代,实用空间也不压抑。

大白墙、水泥地,48㎡的小户型,进屋就被吸引了,简约又漂亮

大白墙、水泥地,48㎡的小户型,进屋就被吸引了,简约又漂亮

三段推拉玻璃门,将卧室与其他空间分隔开,界限分明又不占用太多空间,玻璃的通透性又保证了卧室采光。卧室空间有限,摒弃了成品双人床,用木板现场制作地台,大芯板做基层木地板饰面,床体就完成了。背景墙做了一组薄柜,中间镂空设计取代床头柜功能。隐藏式照明设计,柔和的灯光让起夜不刺眼。

大白墙、水泥地,48㎡的小户型,进屋就被吸引了,简约又漂亮

合理利用空间,将卧室一分为二开辟出衣帽间,满足女主人对衣帽间的向往。采用半磨砂玻璃隔断,增加衣帽间私密,又让空间通透不拥挤。

大白墙、水泥地,48㎡的小户型,进屋就被吸引了,简约又漂亮

衣帽间定制大面积衣柜,转角处选择开放式设计,成为女主精致生活的绝佳展示。

大白墙、水泥地,48㎡的小户型,进屋就被吸引了,简约又漂亮

卫生间也有些与众不同,一体台盆颇具艺术质感,暗藏龙头和下水让空间更整洁美观。除了安装镜柜之外,还补充了一组开放式格子,用于摆放经常用的洗漱用品,日常生活更方便。

大白墙、水泥地,48㎡的小户型,进屋就被吸引了,简约又漂亮

马桶区和淋浴房,不需要而外安装置物架,马桶后面附加的壁龛设计,满足了卫浴用品的收纳规整,结实耐用还美观。淋浴房采用双向推拉设计,提高了使用灵活性。灰砖与仿木砖结合,勾勒白色美缝,线条感分明整体很美观。

看完装修感觉真不错,优雅的空间透露着一种高级的静谧,简约又漂亮,进屋就被吸引了。喜欢这种格调的,可以参考一下装修。


推荐阅读:南平热线

(正文已结束)

免责声明及提醒:此文内容为本网所转载企业宣传资讯,该相关信息仅为宣传及传递更多信息之目的,不代表本网站观点,文章真实性请浏览者慎重核实!任何投资加盟均有风险,提醒广大民众投资需谨慎!